HomeNotícias
Alumni de Arquitetura e Urbanismo destaca experiência em eventos e como comanda seu próprio escritório

Alumni de Arquitetura e Urbanismo destaca experiência em eventos e como comanda seu próprio escritório

Compartilhe
Desde o início do curso, o alumni Leandro Gine teve experiências em diferentes áreas do mundo arquitetônico e ressalta a importância de cada uma para o sucesso profissional.

Fundador do próprio negócio, Leandro Augusto Gine é um arquiteto e urbanista formado pela UniFAJ, unidade do Grupo UniEduK em Jaguariúna. Atualmente, trabalha na área de arquitetura residencial e comercial, porém, conta um pouco mais sobre experiências em diferentes áreas da Arquitetura que conheceu durante a faculdade.

Quando ingressou na universidade, Leandro gostava de frequentar festivais de música, assim como muitos jovens. Não demorou muito para que o lazer e os estudos se integrassem: o então aluno conseguiu uma oportunidade de trabalho com projeto de eventos. 

Nesse emprego, o estudante ficou encarregado de projetar estruturas arquitetônicas e ambientes de grandes eventos realizados e conhecidos em toda a região. Você sabia que quem deve planejar todas as estruturas de festas, shows, e tudo mais é um arquiteto?!

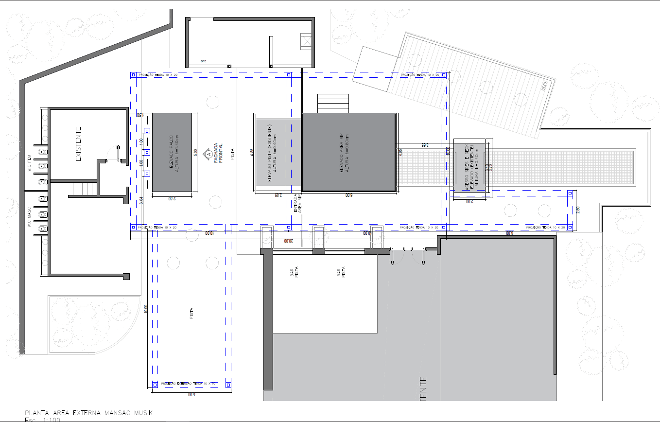
Dentre os projetos de eventos de sucesso de Leandro, o mesmo ressalta a Mansão Musik: um club dedicado à House Music, um ramo da música eletrônica. O local recebe os melhores DJs do gênero em um espaço rústico, inusitado e bem estruturado. Localizada em Serra Negra-SP, a Mansão Musik é conhecida em todas as cidades do Circuito das Águas Paulista.

A imagem mostra o empreendimento Mansão Musik em funcionamento,a após a execução dos projetos do alumni Leandro Gine.

Neste projeto, Leandro criou toda a estrutura necessária para a realização das festas no local, com enfoque no palco principal, composto por estruturas metálicas.

A imagem mostra a planta do projeto que o alumni Leandro Gine fez para a Mansão Musik.

Sobre o trabalho com eventos, o arquiteto conta que é muito importante pensar em todas as questões de segurança, conforto e bem-estar dos usuários, e que esse era um dos grandes desafios para ele. 

É importante pensar nas pessoas e nos espaços que criamos. Pensamos no fluxo das pessoas, equipamentos que o evento irá fornecer, conforto termo-acústico, bem-estar, planejamento para não haver aglomeração para retirar fichas dos caixas, comprar insumos vendidos nos eventos e também ir aos sanitários. Tudo isso era levado em consideração para trazer o máximo de conforto e praticidade”, detalha Leandro.

Como os eventos são feitos para grandes públicos que querem conversar, dançar, andar, o alumni afirma que ambientes que exploram a interação entre as pessoas não podem faltar nos projetos destinados a esse fim. Ainda, deixa uma dica do que deve ser levado em consideração: “Um bom projeto, para ser assertivo nas cores, além da iluminação artificial, deve ser acompanhado de um bom estudo, para que os espaços possam desfrutar de iluminação e ventilação natural, em uma proposta que traga conforto aos usuários.

Um bom projeto e uma boa infraestrutura podem atrair ainda mais público ao evento, afinal, quem não gosta de estar em um lugar bonito, confortável e bem estruturado? Leandro conta que seus projetos eram utilizados, também, para esse fim: “Como eram utilizadas maquetes eletrônicas, com implantações humanizadas e plantas, (os organizadores) podiam oferecer ao público uma prévia, e assim atrair ainda mais o público aos eventos”, explica o arquiteto.

 

Além da Mansão Musik, o Leandro Gine também já projetou outros eventos, palcos e até stands para formaturas. Por fim, Leandro acrescenta: “Os trabalhos com eventos foram muito importantes na formação acadêmica”.

 

GINI ARQUITETURA

Nos dias atuais, já formado pela UniFAJ, Leandro Gine montou e trabalha em seu próprio escritório, Gini Arquitetura. Fundado há pouco mais de um ano, o escritório atua com diversas categorias de projetos arquitetônicos: arquitetura de interiores, comercial, administração e acompanhamento de obras, entre outros.

Nas páginas da internet, os projetos do jovem arquiteto se destacam pela qualidade. Sendo assim, o alumni destaca a importância do curso de Arquitetura e Urbanismo em sua trajetória profissional: “A faculdade foi importante graças aos mestres que nos nortearam a pensar nas pessoas, em espaços que despertem sensações e até mesmo questionamentos. Também, sobre a relação sócio cultural entre os espaços e pessoas, através da urbanização das cidades”.

O escritório conta com equipes colaborativas, que auxiliam no campo para a construção de espaços inspiradores e inovadores. 

Com o empreendimento sendo montado em meio ao período de pandemia, o alumni Leandro destacou que espaços abertos são essenciais em todo projeto, mesmo antes deste período. “A pandemia veio para alertar o quão importantes são os espaços abertos, a importância dos equipamentos de saúde. Para nós arquitetos desde os ensinamentos da faculdade sempre foram pontos importantes na elaboração de um projeto”, conta o arquiteto.

Por fim, Leandro afirma o que acredita ser a razão de seu esforço: cada projeto é feito para que as pessoas compartilhem suas vidas, experiências, trabalho e felicidade, através da arquitetura inovadora, realista, sustentável e consciente, com empatia, entusiasmo e conhecimento.

 

Confira notícias do curso de Arquitetura e Urbanismo do Grupo UniEduK

O que acontece na UniFAJ

Política de privacidade
Icone Social
Icone Social
Icone Social

UniFAJ - Centro Universitário de Jaguariúna | CNPJ 03.211.847/0004-56 | 1999-2026 | Todos direitos reservados ©